informations
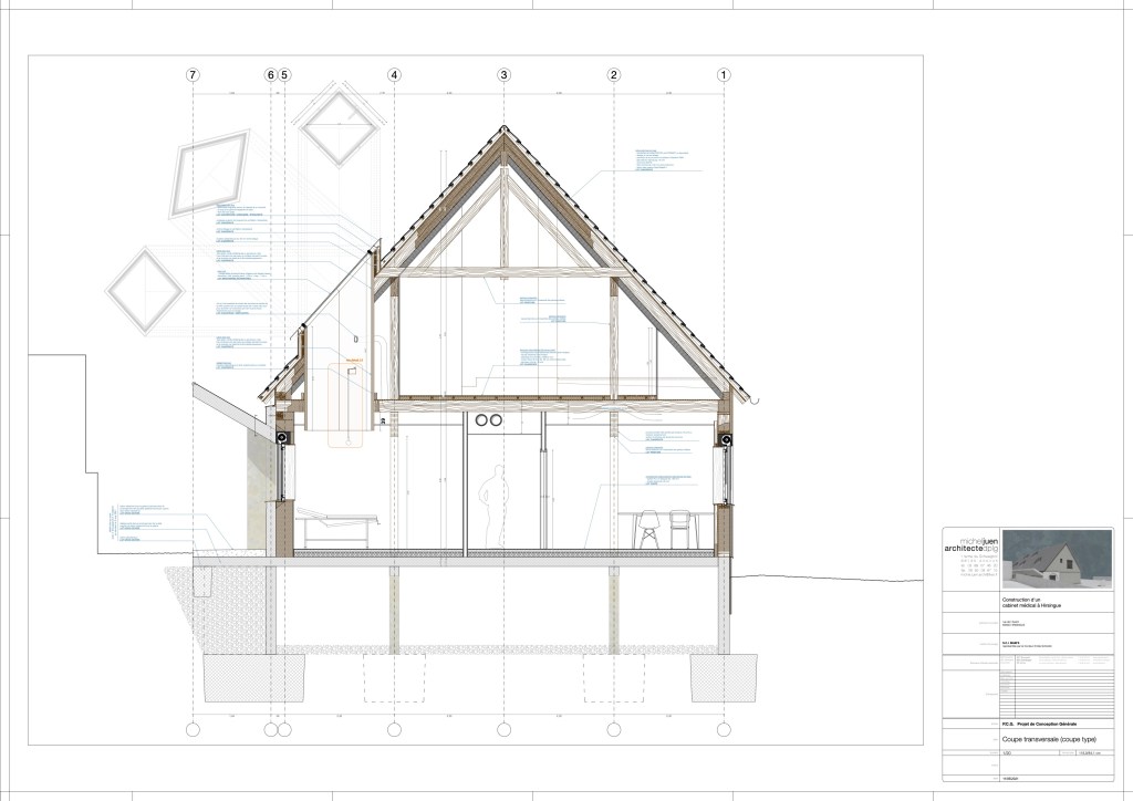
lieu
Hirsingue (68)
dates
2020 – 2023
surface
284,25 m2
mission
complète
maître d’ouvrage
privé
maîtrise d’oeuvre
michel juen architecte dplg
structure : BET Bourgeat
thermique & fluides : BET Schlienger
économie : BE Denis
description
description à venir
photos: William Moore / Grégory Tachet / Michel Juen

























